- お気軽にお電話ください TEL:03-3651-2474
- メールはこちらから
Gコミ266 2018年01月号
新年明けましておめでとうございます
平成になって今年で30年目を迎えます。この30年色々なことが有りました。住宅建築の世界でもこの30年はずいぶん変わりましたが、これからの10年はもっと大きな変化があるのではと考えています。
省エネの分野では、2020年には今ある省エネ基準が義務化されます。その先端を行くゼロエネルギーハウスも推奨されていますが、その内容は大きなエネルギー源(太陽光発電)を使い省エネ機器で熱源を作るという本当の省エネにはまだまだという状態です。2020年基準は、弊社の事務所の外壁及び屋根など外回り全体の性能(外皮性能)よりまだ下回っていますし、ヨーロッパの基準には到底及びません。
先月も紹介したYKKでは黒部市前沢にドイツのパッシブハウスの基準を満たした建物を作り運用を開始しました。品川の体感ショールームの中にも前沢と同じ基準の部屋を作り、体感できるようになっています。そこでは小さなエネルギーで温度差のほとんどない室内を体験できます。これからの10年で日本の省エネ住宅がどこまで進化するかを見つめていきたいと思います。
構造については昭和56年に耐震基準が強化され、平成14年に現在の構造基準になりましたが、熊本の地震では耐震等級が基準法より高い建物が大きな被害を受け話題になりました。
建築基準法が昭和25年に出来て住宅建築にも法律の網がかかりました。そして昭和56年には構造基準が強化され筋違いの止め方や金物を使用することが義務づけられました。これでも不十分であるということで平成14年に改正された構造基準により、やっとだれが造っても安全な建物が造れるようになったと考えていました。
しかしながらこれでも、熊本地震ではつぶれてしまう建物が出てきました。戦後ずっと構造基準は強化されどんどん建物は固くなりました。言い換えると変形しにくくなりました。これで条件を超えない力には耐えることができますが、自然の力は強大で時として私たちが想像もできないような力が加わることがあります。
その時には固いだけでは壊れてしまいますので、加えられた力を受け流す“制振”という考え方をもう少し取り入れた方が良いと思います。昔の日本建築はこのような考え方で出来ていたように思います。
また熊本地震で気が付いたことですが家は潰れて居るけれども屋根の瓦はしっかり屋根に乗っている風景でした。最近の瓦はすべてに瓦を屋根下地に止めなければならない施工になっていて屋根瓦が落下しないため家が壊れても瓦が残るようです。これもおかしな話だと私は思っています。家がつぶれる前に瓦が落ちれば家は潰れないで済む場合もあると思います。
30年以上前に実際にあったことですが、奄美大島に大きな台風が来て風速が60mを超えたとき、古い昔からの家が基礎から離れて30cmぐらい移動しました。家は無事だったので後日元に戻したそうです。それに対し基準法通りの建物は風力に耐えられず屋根が飛んでしまいました。今になって考えるとどちらが良いのかよくわかりません。
アメリカでは昨年風速が70mを超えるハリケーンが上陸しましたが丈夫にするだけでよいのでしょうか。色々取り組む課題がありますが今年も宜しくお願いします。(後関 和之)
住みごこちはいかがですか
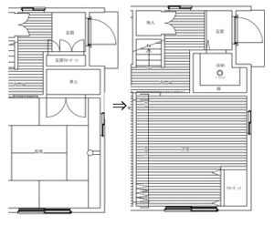
昨年、10月に内部のリフォーム工事を終えたT様邸におじゃましました。
大手ハウスメーカーのS造(鉄骨)で27年前に建てたT邸は水回り全般が痛んできた事と子供たちの独立でキッチンや浴室をコンパクトにしたいと思われたそうです。
一之江葛西にある4社のショールームを見て歩き、それぞれの特徴が分った上でキッチンや浴室洗面台、トイレを選びました。
水回りの入れ替と一緒に間取りの変更やクロス、床の張替えも行いました。
玄関回りに物が多く片付かないのでシューズボックスの後ろにある和室の押し入れを壊して玄関土間とつながったクローゼットにしました。玄関にあった傘立てやゴルフバック、帽子や沢山の靴が機能的に収納できスッキリしました。
靴を収納するクローゼットは臭いが気になるので換気扇を付けたいところですができれば壁に穴を開けたくなかったので、前から気になっていた天井埋込型の脱臭機「エアイー」を取付けました。その効果を知りたかったので直ぐにクローゼットを開けさせて頂いて鼻をクンクンさせましたが、靴等から出る臭いは無く効果が確認できて、お勧めして良かったと思いました。
リビング隣の和室は、境の壁や敷居を取り除いてリビングとの段差を無くしてワンフロアーに折れ戸で仕切れるようにしました。和室の天井はT様の要望でそのまま残す事になりましたが床の間や下がり壁を取り払いながらも天井、廻り縁を傷つけないように大工さんは苦労をしました。
T様も「大工さんはすごい。」とその技術を喜んでくださいました。天井と新しく取り付けた建具が雰囲気も合って居心地の良い部屋ができました。
リフォームをして良かった事
☆ 浴室に暖房を付けて暖かく入浴ができる事。浴室の壁がホーローパネルなので掃除が楽になりました。
☆ 廊下からドアを引き戸に変え、閉める度に2階まで響いていた音が無くなった。
使った建具は開く時も閉まる時も直前にブレーキがかかってから静かに引き込みます。
☆ 床や建具、以前はこげ茶だったのを明るくしたので部屋が明るくなった。Et cetera
最後にT様は「思っていた以上に良くなりました。」と言って下さいました。(白井)
新入社員紹介
12月より入社致しました、阿部浩章と申します。
高知の高校を卒業後、江戸川区内の工務店で大工兼現場監督として勤務していました。その後、江東区のハウスメーカーに転職し、現場監督専任で働いていましたがこの度縁あって大和工務店で働かせていただくことになりました。
最初に入った工務店では、社会人経験はおろか建築の経験も全く無い状態から始めたので、まさに「見習い」「聞き習い」でした。大工仕事を一から学び、ある程度現場の納まりや工事の進め方を学んだ段階で二級建築士の資格を取り、図面や見積もりの作成、現場監督が主な仕事となっていきました。
次の勤務先となったハウスメーカーでは現場監督専任となったのですが、製図や見積作成から解放された分、家づくりの全体像を把握することができなくなり、次第に物足りなさを感じるようになり転職を決意しました。
転職先を探すにあたり、「地域に根付いた工務店であること」「家づくりに広く深く関われること」「少人数でフットワークの良い会社であること」「できれば自宅から近いこと」などの要望を全て満たしていたのが大和工務店でした。自宅から近く(自転車5分の距離です)、灯台下暗しとはよく言ったものだなぁ、と面接後に思ったものです。
これまでの職務経験としては、主に新築の住宅が多かったのですが、リフォームや店舗の内装なども手掛けており、変わったところでは完全防音の音楽スタジオを作ったこともあります。そこまで本格的ではないにしろ、自宅で気兼ねなくピアノを弾きたい、ホームシアターで大音量で映画を楽しみたい、など住まいに関するご要望がありましたらご相談ください。中にはどうしてもできない、ということもあるかも知れませんが、私はお客様のご要望に対して「できない理由」を探すのが嫌いです。「できる可能性」を探し、「実現するための方法」を検討することが建築という仕事の醍醐味だと思っています。
まだ入社したばかりで手探り状態ではありますが大工職、現場監督としての経験を活かして皆様のお役に立てれば、と思っています。年明けからは定期点検にも伺います。
お客様の大切な家守りの一員として努力して参りますので、よろしくお願いいたします。(阿部浩章)
美味しい柚子ジャムづくり 毎年好評です。
ゆずの皮と実、種から出るペクチンも煮立てて使います。捨てるのはヘタと白いすじくらいですからとてもエコなジャムです。私も6年前から庭になっているゆずを使ってジャム作りを始めました。
毎回、もっと美味しくするにはと試行錯誤しながら出来上がりを楽しみに作っています。
皆様も楽しくて美味しいユズジャム作りをしてみませんか。
14回目のIHクッキングヒーターを使った、ユズジャム作りです。出来たジャムはおみやげに・・・(白井)
日時 1月14日(日) 午後1:00~午後3:00
費用 1,000円 定員10名様
場所 大和工務店事務所1F 江戸川区西一之江3-39-21
※お申込みは ☎03-3651-2474大和工務店 白井迄
予告 2月に味噌作りを計画しています
大豆をつぶし、塩とこうじをあわせて、美味しい味噌を作ってみませんか?
大豆のつぶし方で好みの味噌が作れます。
日程等、詳細は次号で・・・

1月に大和工務店で行う教室
☆荷造り紙バンドを使ったかご作り
日時:10日(水) 20日(土) 午後1:30~
費用:900円(かご1~2ヶ作れます)
※ 当日のお申込みも受け付けます。初めての方は事前に連絡お願いします。
☆パッチワーク教室
日時: 9日(火) 23日(火) 2月2日(土)午後1:30~
費用:1ヶ月 300円(コピー代等)
※ 前日までにお申し込み下さい。



